Pickle Ball and Tennis Court Facility

The Town of LaSalle is excited to announce an addition to its outdoor activity facilities. New pickle ball and tennis courts are being added to the Vollmer Centre.

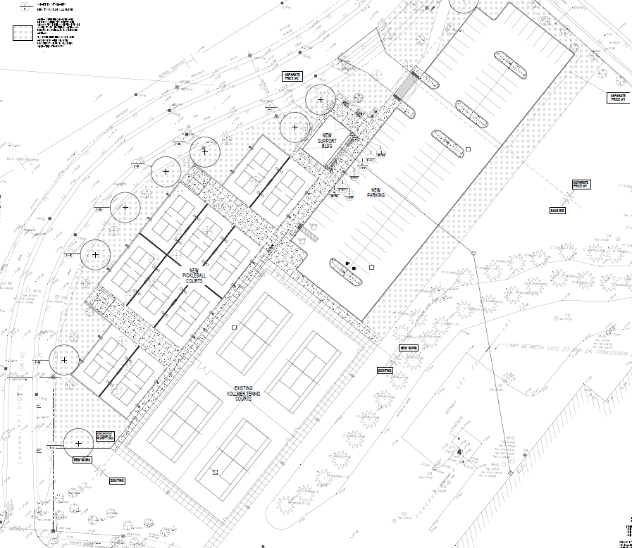
Located on the west side of Diotte Drive, the expansion will include: 

  • 10 pickle ball courts.
  • 4 tennis courts.
  • Outdoor lighting.
  • Washroom facilities.
  • Parking facilities.

Pickle Ball and Tennis Court Facility

JP Thompson Associates Photo #1
JP Thompson Associates Photo #2
Site Design

The project design phase has been completed and it is expected to go through the tender process in the Spring of 2026. Construction will start shortly after and is expected to last until late Summer. 

Construction sites can be dangerous. We ask that all residents, owners, and employees within the construction zone maintain a safe distance from all construction equipment and materials. 

Questions or Concerns:

We understand that road work can be disruptive, and the Town of LaSalle aims to complete the project as efficiently as possible while ensuring the quality and safety of the road for all users. If you have any questions or concerns regarding the upcoming construction project, please feel free to contact the Town of LaSalle’s Public Works Department at 519-979-7770 or by email at publicworks@lasalle.ca.

We appreciate your cooperation and patience throughout the construction process. 

Contact Us

Town of LaSalle
5950 Malden Road
LaSalle, ON N9H 1S4
T. 519-969-7770
F. 519-969-4469
Map this Location